Cuarto Piso
Plano cuarto piso

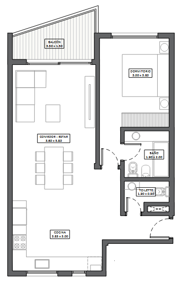
Departamento 401
4 Ambientes
96.75 m2 construidos.
Cocina integrada al estar-comedor mediante una barra desayunadora, baño completo, toillete con ducha y dos dormitorios.
Espacio multifunción cercano al acceso que puede funcionar como lavadero independiente, estudio o dormitorio de huéspedes según necesidad.
Salida a balcón.


Departamento 302
Dúplex Planta Alta
31.15 m2 construidos.
Espacio de guardado, baño completo y dormitorio.
Pequeño balcón.
Departamento 303
Dúplex Planta Alta
36.55 m2 construidos.
Espacio destinado a estar íntimo o estudio, baño completo y dormitorio.
Pequeño balcón.


Departamento 404
2 Ambientes
70.20 m2 construidos.
Cocina integrada al estar-comedor, toilette, baño completo y dormitorio.
Salida a balcón.