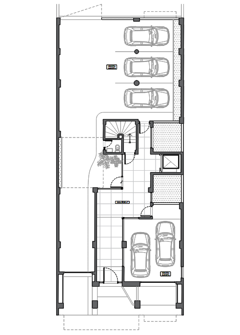
Planta Baja

Planos planta baja

Interior

Ascensor de última generación.

Preinstalación de aire acondicionado en todos los ambientes.

Diseño natural, incorporación de vegetación colgante para realzar los espacios comunes.

Comodidad adicional: toilette en planta baja.

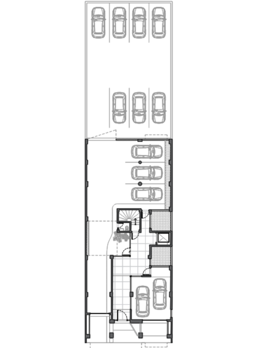
Maqueta planta baja (2), Ruca Felen I
Edifico Ruca Felen I planta baja (2)
Edifico Ruca Felen I planta baja (4)

Cocheras - Exterior

Se ubican 12 cocheras, 5 de estas cubiertas y 7 las restantes descubiertas.

Maqueta planta baja, Ruca Felen I
Edifico Ruca Felen I planta baja (6), estacionamientos
Edifico Ruca Felen I planta baja (7), estacionamientos