Primer Piso

Plano primer piso

Maqueta 1º piso, Ruca Felen I

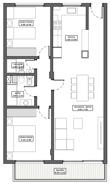
Departamento 101

3 Ambientes

86.25 m2 construidos.

Cocina integrada al estar-comedor mediante una barra desayunadora, baño completo, toillete con ducha y dos dormitorios.

Salida a balcón.

1º piso, departamento 101 (3), Ruca Felen I
1º piso, departamento 101 (4), Ruca Felen I
Maqueta 1º piso, departamento 101, Ruca Felen I
Maqueta 1º piso, departamento 102, Ruca Felen I
1º piso, departamento 102 (2), Ruca Felen I
1º piso, departamento 102 (3), Ruca Felen I

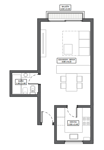
Departamento 102

1 Ambiente

41.90 m2 construidos.

Cocina independiente, baño completo y estar-comedor y dormitorio.

Pequeño balcón.

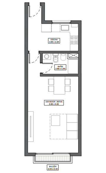
Departamento 103

1 Ambiente

40.15 m2 construidos.

Cocina independiente, baño completo y estar-comedor y dormitorio.

Pequeño balcón.

1º piso, departamento 103 (2), Ruca Felen I
1º piso, departamento 103 (3), Ruca Felen I
Maqueta 1º piso, departamento 103, Ruca Felen I
Maqueta 1º piso, departamento 104bis, Ruca Felen I
1º piso, departamento 104 (3), Ruca Felen I
1º piso, departamento 104 (4), Ruca Felen I

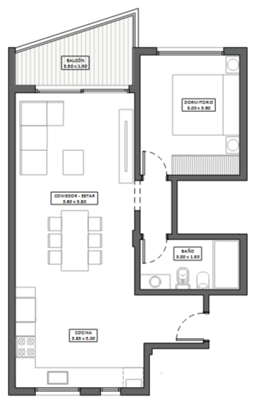
Departamento 104

2 Ambientes

65.30 m2 construidos.

Cocina integrada al estar-comedor, baño completo y dormitorio.

Salida a balcón.