Segundo Piso

Plano segundo piso

Maqueta 2º piso, Ruca Felen I

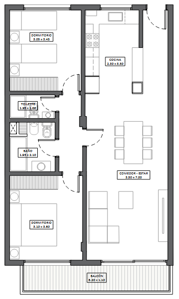
Departamento 201

3 Ambientes

86.25 m2 construidos.

Cocina integrada al estar-comedor mediante una barra desayunadora, baño completo, toillete con ducha y dos dormitorios.

Salida a balcón.

Maqueta 2º piso, departamento 201, Ruca Felen I
Maqueta 2º piso, departamento 202, Ruca Felen I

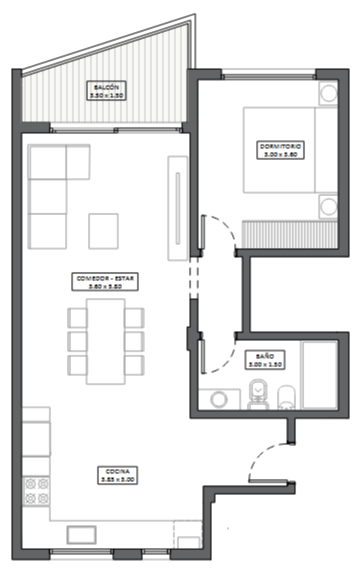
Departamento 202

1 Ambiente

41.90 m2 construidos.

Cocina independiente, baño completo y estar-comedor y dormitorio.

Pequeño balcón.

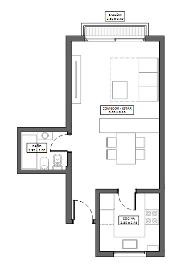
Departamento 203

1 Ambiente

40.15 m2 construidos.

Cocina independiente, baño completo y estar-comedor y dormitorio.

Pequeño balcón.

Maqueta 2º piso, departamento 203, Ruca Felen I
Maqueta 2º piso, departamento 204, Ruca Felen I

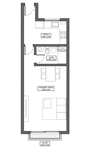
Departamento 204

2 Ambientes

65.30 m2 construidos.

Cocina integrada al estar-comedor, baño completo y dormitorio.

Salida a balcón.